E46 Heated Seats Wiring Diagram

23+ E46 Heated Seats Wiring Diagram Gif. Can anyone help me find a decipherable wiring diagram for that plug? I bought a set of black e46 m3 power/lumbar/heated seats to replace my trusty but battle hardened vaders.

Unique Bmw E46 Heated Seat Wiring Diagram #diagram # ...
Unique Bmw E46 Heated Seat Wiring Diagram #diagram # ... from i.pinimg.com
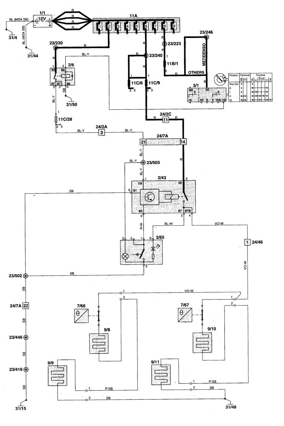
Drive side front passenger seat heater control unit. I found a wiring diagram and i think it shows the heated seat module as built in to each seat and the wiring between the switches and seats as being somewhat here's the diagram. Thank you in advance for your assistance.

Maybe this will help answer some of your questions, it is pretty detailed.

By ronzo in forum general bmw mechanical help sponsored by rm european auto parts. Mine seem a little different the ign spot would be a good choice. I bought a set of black e46 m3 power/lumbar/heated seats to replace my trusty but battle hardened vaders. Asked a couple people where the wires are hidden or at least the location.


Belum ada Komentar untuk "E46 Heated Seats Wiring Diagram"

Posting Komentar

Iklan Atas Artikel

Iklan Tengah Artikel 1

Iklan Tengah Artikel 2

Iklan Bawah Artikel